Recreation

Project details

Client:

NYC Dept. of Parks & Recreation

Architect:

Marvel

Status:

On-going

Construction:

2025–tbd

Walter Gladwin Recreation Center

Bronx, NY

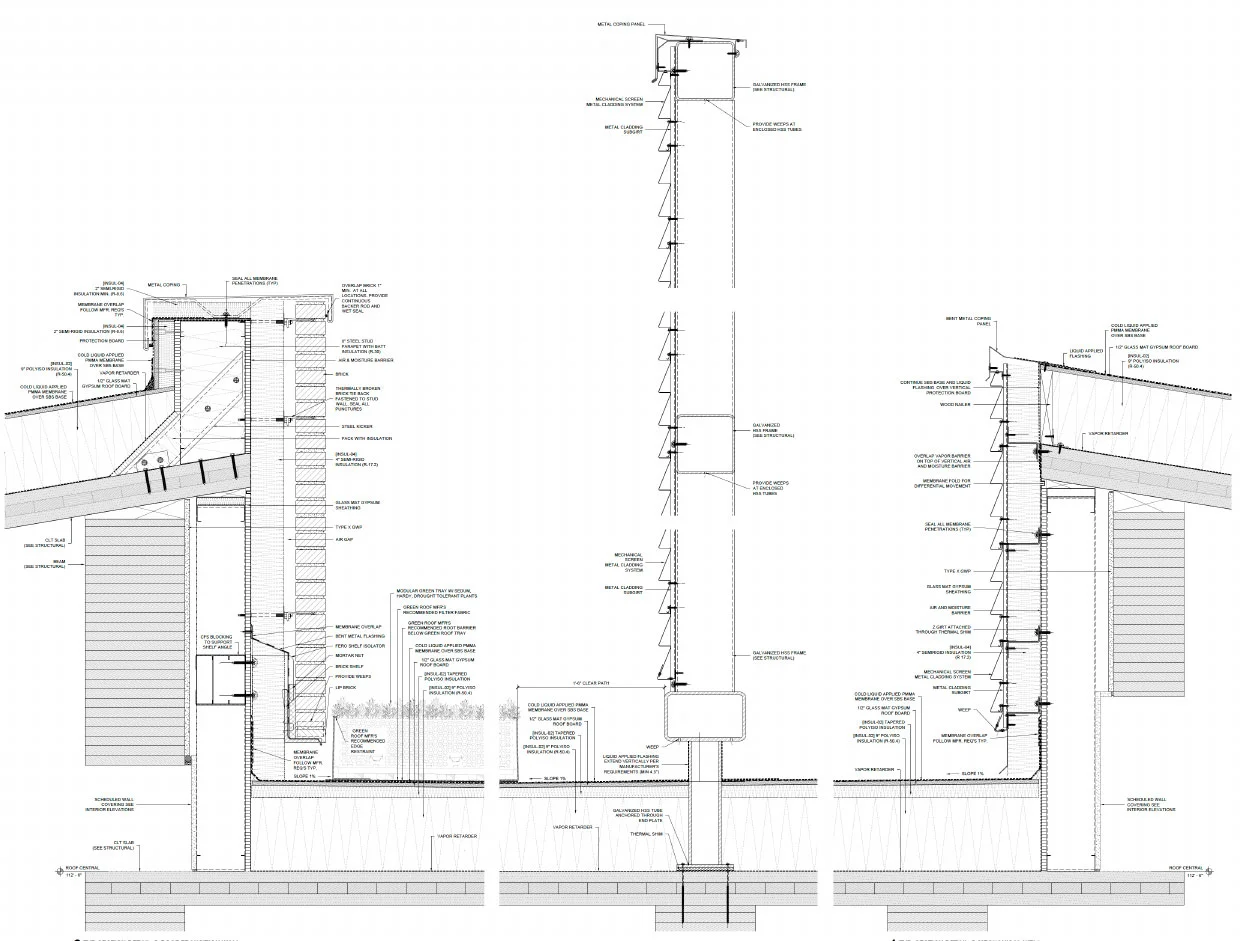
The Walter Gladwin Recreation Center in the Bronx is the first mass timber public building commissioned by New York City. Designed for the NYC Department of Design and Construction and NYC Parks, the 40,000 sf facility sits along East Tremont Avenue, forming a new edge to Walter Gladwin Park.

The envelope combines a striated brick façade with exposed timber elements, creating a durable yet inviting expression that ties the urban streetscape to the green park interior. Generous glazing and carefully scaled openings bring daylight deep into the recreation spaces while emphasizing transparency and accessibility. 

The renovation work done here looked closely at the character of the site and its buildings and attempts to link the old character with the newfunctional dance theatre.